Interior Design
Kerian
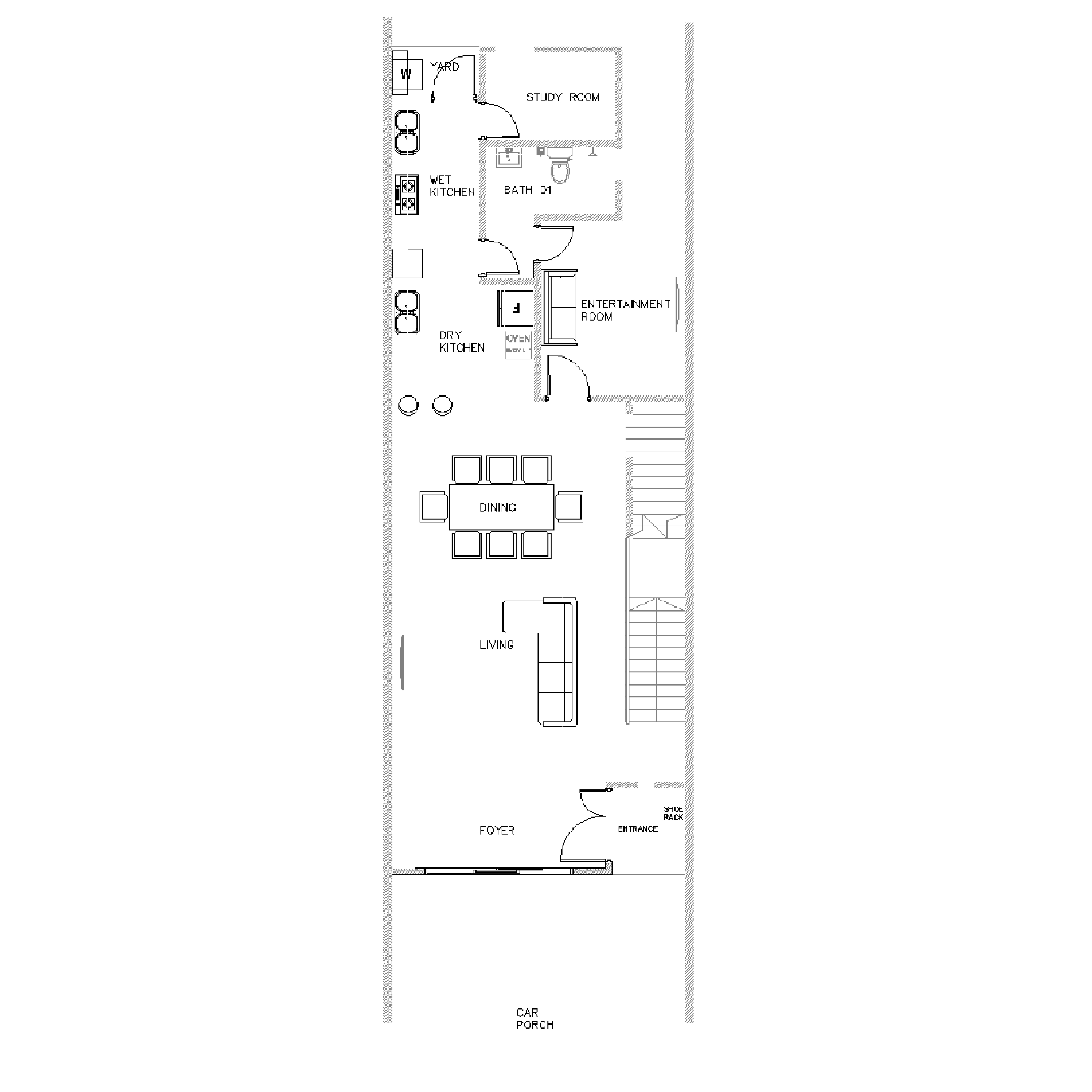
The interior design style of the house depicted in the image is modern and comfortable, with marble texture walls, dark wooden colors, and creamy tones. The marble texture walls add a touch of elegance and sophistication to the design, creating a luxurious and upscale ambiance. The dark wooden colors bring warmth and richness to the space, providing a sense of coziness and comfort. The creamy tones add a light and airy feel, balancing the darker elements in the design.
Location
Concerto North Kiara, Mont Kiara
Total Area
1400 SQFT
Budget
250,000
Concept
Modern Luxurious Concept
Modern Luxurious
Modern Luxurious interior design combines the clean, sleek lines of modern design with opulent materials and sophisticated details to create a lavish yet contemporary aesthetic. This style emphasizes high-quality materials such as marble, velvet, and polished metals, often in rich, deep color palettes complemented by neutral tones. Luxurious furnishings with elegant, sculptural forms are paired with statement lighting fixtures and bespoke art pieces to enhance the sense of grandeur. Technology is seamlessly integrated for convenience and efficiency, while spacious layouts and large windows ensure a bright, airy atmosphere. The result is an upscale, refined space that exudes comfort and style without excess or clutter.

